有关“私立学校房”始终都是学生家长们高度关注的难题,但好的私立学校房,数十亿一百万,让很多学生家长们都真的缘故,因而“老破小”改建成了学生家长们的新优先选择。
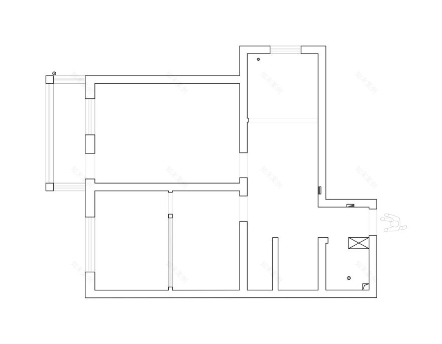
▼66㎡的大屋,又脏又破

改建前的大屋,吗又脏又破,屋檐开裂,门上还挂着从前的书签、常加,占地面积并不大,但残破苦不堪言,天花板着实破损轻微。

▼洋房改建

▼改建计划

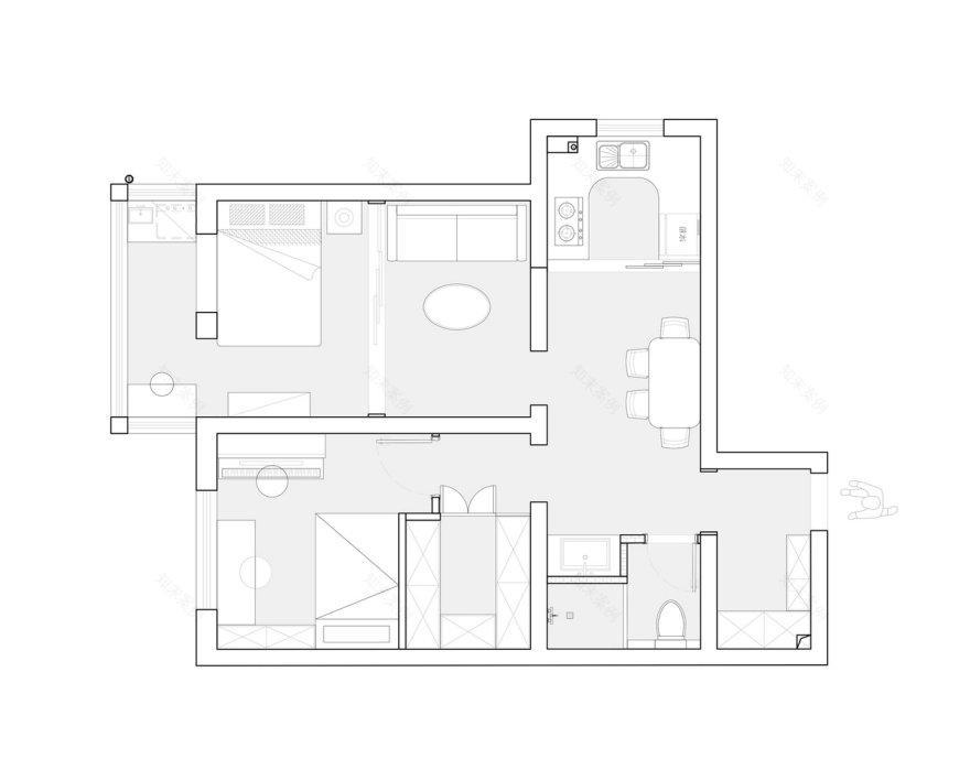
在洋房改建上,雕塑家封住了部份非承重墙,贯通了整座家,因而无论是视线却是通风,都更显透亮感。
▼改建后的老破小

改建后的大屋,更显温馨色彩之感,搭配绿植等元素,处处散发着自然清新的气息,下面就随居叔一起来看看,改建后的老破小。
▼玄关|改建后

再搭配一组背光穿衣镜+换鞋凳等元素的修饰,小小玄关就让人眼前一亮。

别看玄关虽小,却功能齐全,入户镜、通顶鞋柜、换鞋凳等都一应俱全,玄关柜下方还设置了换鞋区,简约又实用。

原始大屋中,并没有“客厅”这个区域,@壹石设计巧妙利用了主卧空间,隔断出了一个客厅区域,让这个私立学校房也多出了一个待客空间。

站在主卧望向客厅区域,整座客厅以藕粉色调为主,搭配原木色的家居,以及绿植、挂饰等元素的修饰,空间小巧,却充盈着满满的自然温馨感。

主卧和客厅之间,还有一个巧妙的小隔断。


沙发背景墙的后方区域,优先选择了两幅装饰画进行点缀,卡通元素的融入,让客厅多了一些俏皮感,也更适合小孩子成长。
▼卧室|改建后

同时封住了部份墙面,弧形窗洞,也增加了卧室区域的通风。


透过主卧一旁的弧形窗洞,可以看到大占地面积的绿植,以及白色瓷砖,树叶从阳台延伸到卧室区域,仿佛天然的框景,让卧室多出了几分惬意自然的美感。

夜幕降临时,吊灯点燃屋内的灯光,空间氛围感十足,谁能想到原本这是一套老破小的大屋呢?
▼走廊|改建后

走廊以巧克力色乳胶漆为主,搭配一张超大的全身镜,视觉上提升空间感。
▼儿童房|改建后


靠窗区域定制了一组悬挂式书桌+衣柜,既是学习区域,也是一个收纳区域,空间并不大,但是功能感满满。
▼餐厨|改建后


厨房区域以U字型布局为主,空间吗小巧,但是足以满足一家人的日常烹饪需求。

文末总结
深圳小产权房网









